Prezentare generală
Presa peleti rumegus TL-700 este proiectat(ă) pentru producția de peleți din biomasă, oferind eficiență și fiabilitate în exploatare.
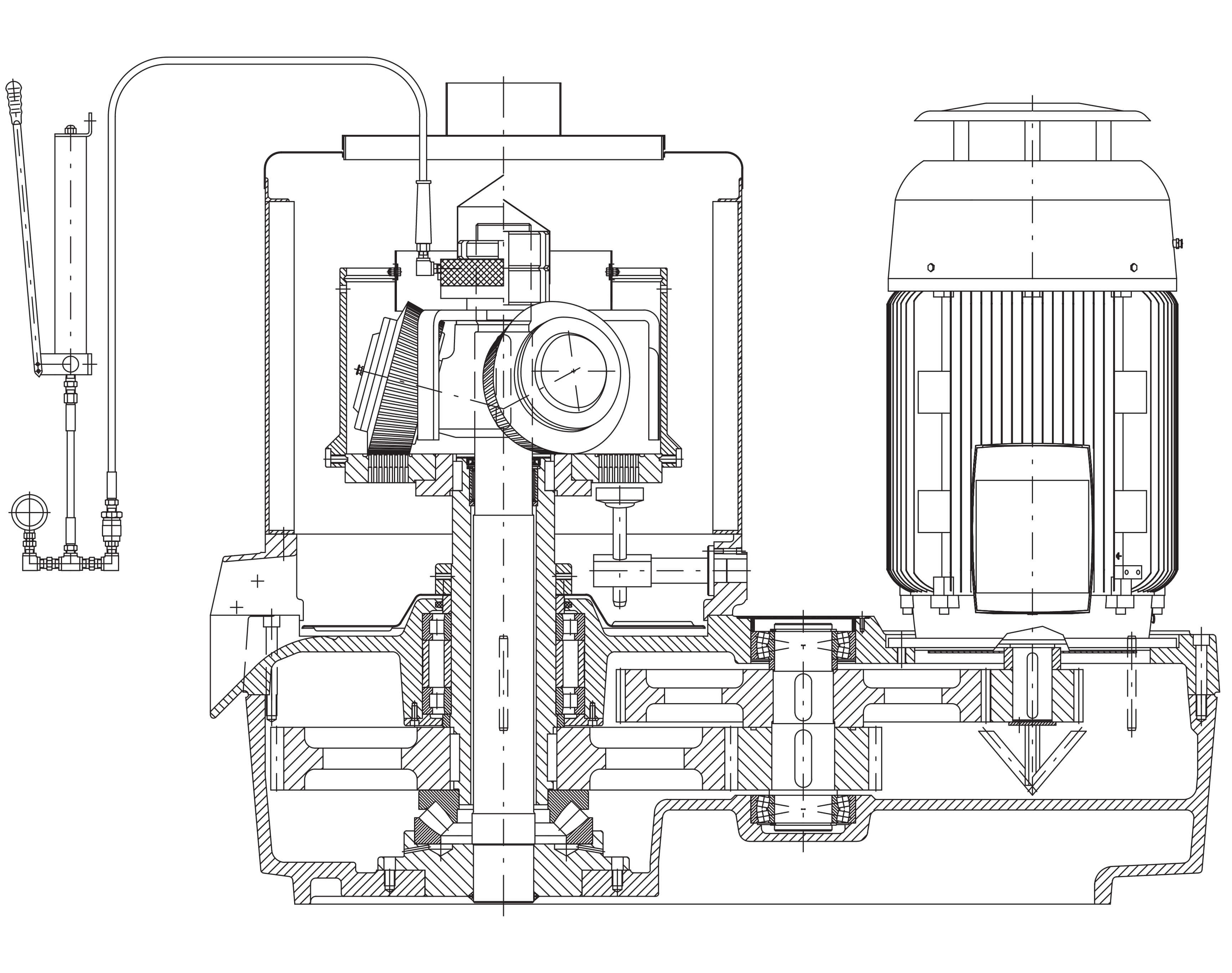
Presa peleti seria "Gama Pardubice" model: TL-700 Matrita plana diametru 600-800 mm
Caracteristici tehnice:
Productivitate peleti pana la: 900 kg/ora*(75kW) - 1500 kg/ora*(90kW) in functie de materia prima si diametru orificii matrita. La cereale productivitate pana la 4000 kg/ora de granule furajere.
Matrita plana diametru: 600-800 mm
Diametru role presare: 230 mm
Diametru peleti: 6-8-10-20 mm
Lungimea peleti reglabila: 15 - 30 mm
Motorul Principal - 1 X 75, 90 kW Siemens
Puterea totala instalata - 75/90 kW
Curent trifazat - 400V, tensiune bobine 24V/230V in limitele de +/- 5%, frecventa 50 Hz
Dimensiuni: 2100 X 1000 X 1805
Greutatea: 4000 kg
Conținutul de umiditate a materiei prime: 10-12-14 % - umiditatea influenteaza la calitatea, productivitate peleti
Dimensiunea materiei prime: 3 - 5 mm
Densitatea peleti la iesire din presa peleti pana la 1250 kg/m3
Densitatea in vrac Big-Bags pana la 700 kg/m3
Tipul materiei prime: rumegus de lemn*(granulatie 3-5mm, 90% esenta tare si 10% rasinoase, optional dextrina 1,0-1,5%, generator aburi), alte deşeuri din biomasa, gunoi de grajd și alte deșeuri agricole compostabile.
Fiecare materie prima are diferite conicitati si dimensiuni la matrita plana fixa
Tehnologia folosita din 2026
Presa peleti TL-700 - Linie presa productie peleti - Instalatia peletizare consta din:
-Presa peleti TL-700
-Matrita plana rotativa cu 3 role fixe*(gresare pneumatica manual la fiecare 4 ore, fara oprire producere, rulmenti SKF, Timken, Vaselina Total Ceran XM460)
-Sistem de actionare hidraulica manuala pentru strangerea ai slabirea capului rolelor
-Panou de comanda si control electric, soft-starter Eaton, display touch screen HMI - 5.7-7.7 inch,cu cablu trifazat de 10 metri

Presa peleti seria "Gama Pardubice" model: TL-700 este utilazat industrial in cadrul linie peletizare peleti din biomasa*(linii productie peleti sau granulare) sau separat.
Generator aburi
Automatizare industrială PLC - HMI de ultimă generație
Sistem de umidificare a materiei prime
Buncăr (Siloz) omogenizare Volum 3 m.cubi cu melc dozare controlat prin convertizor frecventa
Racitor peleti Volum 3 m.cubi + Banda transport peleti
Sistem de gresare role: manual, automatizat
Role, Matrite plane cu gauri de 6-8-10-20 mm
Insacuire semiautomatizata saci peleti sau Big-Bag
Complex tocare baloti paie rotunzi sau dreptunghiulari CGS-2
Uscator aerodinamic paie sau rumegus DAD-0.6-1.2
Uscator rotativ paie, cereale, lucerna, digestat, gunoi din grajd sau rumegus
Rentabilitatea investiției (ROI)
Investiția într-o presă de peleți devine profitabilă atunci când materia primă este valorificată eficient, iar procesul de producție este stabil și continuu. Spre deosebire de estimările teoretice, noi oferim o abordare practică, bazată pe experiență reală în exploatare.
De ce depinde rentabilitatea
Rentabilitatea investiției este influențată de câțiva factori esențiali:
- ✔️ Costul materiei prime poate fi adesea zero sau foarte redus în cazul rumegușului, paielor și altor resturi agricole. În schimb, pentru digestat și deșeurile din grajd, există de regulă costuri de eliminare sau predare către companii specializate în prelucrarea deșeurilor, ceea ce poate transforma aceste materiale într-o oportunitate de valorificare economică
- ✔️ Capacitatea de producție a utilajului (kg/oră)
- ✔️ Costurile operaționale (energie, mentenanță, personal)
- ✔️ Prețul de vânzare al peleților, granulelor sau îngrășământului organic sub formă de pelete pe piața din România și UE
Exemplu orientativ de calcul
- Materie primă: disponibilitate proprie sau cost minim
- Producție: funcționare 8–16 ore/zi
- Produs final: peleți calitate superioară, cu putere calorică ridicată
- Piață: cerere constantă și stabilă
În aceste condiții, investiția se poate amortiza într-un interval estimativ de 6 – 18 luni, în funcție de organizarea operațională și volumul de producție.
Ce face diferența în profitabilitate
Nu doar utilajul contează, ci întregul sistem de producție:
- ✔️ Calitate constantă a peleților (densitate mare, fără liant)
- ✔️ Construcție robustă, proiectată pentru durată lungă de viață
- ✔️ Fiabilitate ridicată – funcționare continuă, fără opriri neplanificate
- ✔️ Costuri reduse de mentenanță și exploatare
- ✔️ Acces la piață de desfacere stabilă
- ✔️ Automatizare și optimizare (Industry 4.0 – PLC & HMI)
Consultanță reală, nu teorie
La Agro Bio Brichet Energy Solutions, nu livrăm doar utilaje — oferim soluții complete pentru dezvoltarea unui business profitabil:
- ✔️ Analiză personalizată în funcție de materia primă
- ✔️ Estimare realistă a producției și costurilor
- ✔️ Recomandare pentru linie completă (fermentare, uscare, tocare, peletizare, granulare)
- ✔️ Suport pentru optimizarea procesului
Fă următorul pas
Transformă deșeurile în profit. Solicită un calcul de rentabilitate personalizat și află exact în cât timp îți recuperezi investiția.
Concluzie
Presa peleti rumegus seria "Gama Pardubice" model: TL-700 reprezintă o soluție practică pentru valorificarea biomasei în combustibil ecologic, cu randament și costuri optimizate.